Search for:
Meest gezocht:
Veelgestelde vragen
Keukencollectie
Contact
Menu
Home
Keukencollectie
Design
Greeploos
Landelijk
Modern
Trendy
Alle keukens
Keukenonderdelen
Apparatuur
Werkbladen
Fronten
Blogs & Tips
Over ons
Showroom
Webshop
Afzuigkap
Fornuis
Fornuis met afzuiging
Koel- vrieskast
Koffiezetter
Kookplaat
Kookplaat met afzuiging
Magnetron
Oven
Overig
Steamer
Vaatwasser
Alle producten
Vrijstaand
Inloggen
Downloads
Vacatures
Webshop bestellingen
Je kan tijdelijk geen bestelling plaatsen. Wil je je vast oriënteren? Vergelijk eenvoudig apparaten en merken met elkaar. Klik hier voor meer informatie.
Home
/
Webshop
/
Kookplaat met afzuiging
/
Siemens ED807HQ26E
Kookplaat met afzuiging
Siemens ED807HQ26E
Levertijd: Momenteel niet beschikbaar
4 kookzones met 17 vermogensstanden
TouchSlider
2 combiZones
Maximale afzuigcapaciteit 622 m³/u
Efficiënte koolborstelloze iQdrive technologie
Aansluitwaarde 7,4 kW
Actuele prijs aanvragen
Sommige prijzen zijn relatief vaak aan verandering onderhevig. Klik hier om de actuele prijs aan te vragen. Je krijgt dan direct een e-mail met de actuele prijs. Na het invoeren van de code, kan het artikel in de winkelwagen geplaatst worden.
Uitrusting
80 cm: ruimte voor 4 potten of pannen
Algemene informatie
2 combiZones: gebruik groter kookgerei door twee kookzones te verbinden tot één grote zone
Kookzone linksvoor: 190 mm, 210 mm, 2.5 kW (max. vermogen 3.7 kW)
Kookzone linksachter: 190 mm, 210 mm, 2.5 kW (max. vermogen 3.7 kW)
Kookzone rechtsachter: 190 mm, 210 mm , 2.5 kW (max. vermogen 3.7 kW)
Kookzone rechtsvoor: 190 mm, 210 mm, 2.5 kW (max. vermogen 3.7 kW)
Inductiekookplaat met volledig geïntegreerde krachtige afzuigunit met een keramisch glas element
Geschikt voor luchtafvoer of recirculatieafzuiging (incl. gedifferentieerde softwaremodi). Installatieaccessoires voor recirculatie zonder luchttoevoer, waaronder vier cleanAir Plus-geurfilters en een telescopisch schuifelement, zijn inbegrepen bij de kookplaat. Accessoires voor andere installatieopties zijn verkrijgbaar als optionele accessoires.
Esthetisch geïntegreerd, volledig vlakke luchtinlaat met zwevend, hittebestendig glaskeramiek element voor vrije beweging en plaatsing van kookgerei
Automatische inschakeling van ventilatie bij gebruik van een kookzone
Automatische nalooptijd (30 minuten)
Efficiënte koolborstelloze iQdrive technologie
Gemakkelijk te demonteren en gemakkelijk te reinigen vetfilter en vloeistofcollector
Met één hand te verwijderen filter-unit via glaskeramisch handgreep
Vetfilters van roestvrij staal met 12 lagen voor hoge vetfilteringsefficiëntie 94 %
Alle onderdelen van de unit zijn uitneembaar, vaatwasbestendig en hitte bestendig
Vloeistof opvangunit (bovenaf) met een capaciteit van 200 ml
Krachtig afvoersysteem voor morsen van meer dan 200 ml vocht.
Overloopreservoir met extra capaciteit van 700 ml voor ernstigere ongevalsituaties. Vaatwasserbestendig. Gemakkelijk toegankelijk en afneembaar van onderen.
Totale vocht/vloeistofopname capaciteit van 900ml (200ml+700ml)
Waterdicht ventilatorsysteem
Gebruiksgemak
TouchSlider
Favorieten knop: direct toegang tot favoriete functies met een configureerbare knop (beschikbaar met aangesloten Home Connect account)
17 Vermogensstanden: past de warmte nauwkeurig aan met 17 vermogensstanden (9 hoofdstanden en 8 tussenstanden)
Warmhoud-functie, selecteerbaar via Favorieten knop/Home Connect App (verwachte beschikbaarheid in Q4/2024 via software-update voor apparaten die zijn aangesloten op Home Connect): houd gerechten warm op een vooraf ingesteld laag vermogen
Timer met uitschakelfunctie: schakelt de kookzone uit aan het einde van de ingestelde tijd (bijv. voor gekookte eieren)
Timer met aftelfunctie (kan worden gekozen in plaats van uitschakeltimer): een alarm aan het einde van de ingestelde tijd (bijv. voor pasta)
Geluidsvolume aanpasbaar aan persoonlijke voorkeur en behoeften
FryingSensor Pro: voorkomt aanbranding d.m.v. temperatuurgestuurd bakken en braden
Gerechten assistent, via Home Connect App (naar verwachting beschikbaar in Q4/2024 via software-update voor apparaten die zijn aangesloten op Home Connect): vind eenvoudig de juiste temperatuurinstelling voor een bepaald gerecht via de home connect app
Tijdsbesparing en efficiency
PowerBoost-functie voor alle inductiekookzones: kook water sneller dankzij 50% meer energie dan op de hoogste stand
PanBoost, selecteerbaar via Favorieten knop/Home Connect App (verwachte beschikbaarheid in Q4/2024 via software-update voor apparaten aangesloten op Home Connect): verwarmt pannen sneller dan op de hoogste stand en beschermt tegelijkertijd de pancoating
QuickStart functie: bij het aanzetten selecteert de kookplaat automatisch de kookzone met kookgerei in (geplaatst in uit-modus)
ReStart functie: hersteld alle vorige instellingen door de kookplaat binnen 4 seconden weer in te schakelen
Home Connect
Home Connect: op afstand monitoren en aanpassen van de instellingen met de Home Connect App: controleer of de kookplaat is uitgeschakeld ook als je niet thuis bent, en vind recepten of extra functies in de Home Connect app
Smart home trigger, via Favorieten knop (beschikbaar met aangesloten Home Connect account): open het slimme universum van uw kookplaat (partnerservice vereist)
Updatebaar apparaat (beschikbaar met aangesloten Home Connect account): houd het toestel altijd up-to-date met de laatste stand van de software
Design
StudioLine Deep Black Edition design
StudioLine exclusive zone opdruk: minimalistisch ontwerp dankzij de donkere kleur
Veiligheid
2-Voudige restwarmte-aanduiding: geeft aan welke kookzones nog warm zijn
Kinderbeveiliging: voorkomt activering van de kookplaat
Hoofdschakelaar: schakelt alle kookzones uit met een druk op de knop
Veiligheidsuitschakeling: om veiligheidsredenen stopt het verwarmen na een vooraf ingestelde tijd zonder interactie (aanpasbaar)
Technische specificaties
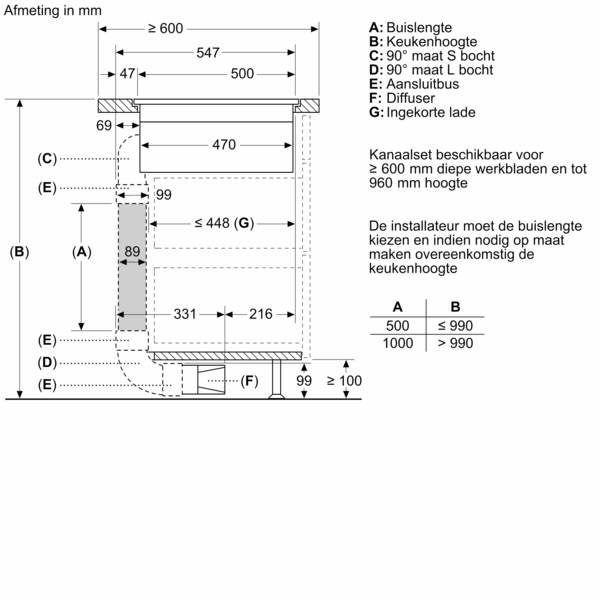
Afmetingen (bxdxh mm): 792 x 512 x 227
Inbouwmaten (hxbxd mm): 227 x 796 x 516
Minimale werkbladdikte: 16 mm
Aansluitwaarde: 7.4 kW
PowerManagement functie: beperk het maximale vermogen indien nodig (afhankelijk van de zekering van de elektrische installatie)
Aansluitsnoer: 1.1 m, Aansluitsnoer meegeleverd
Voor installatie in werkbladen van steen, graniet of kunststof. Andere werkbladmaterialen vereisen een geschiktheidscontrole bij de werkbladfabrikant.
Inbouw in een 60 cm brede kast mogelijk
Toebehoren
Inbegrepen: cleanAir Plus geurfilter (4 stuks), Adapter voor vrij uitblazen
Prestatie en verbruik
Afzuigcapaciteit bij luchtafvoer: min. normaalstand: 154 m3/h, max. normaalstand: 500 m3/h, max. intensiefstand: 622 m3/h
Afzuigcapaciteit bij recirculatie: min. normaalstand: 117 m3/h, max. normaalstand: 487 m3/h, max. intensiefstand 595 m3/h
Geluidsniveau bij luchtafvoer: min. normaalstand 42 dB re 1 pW, max. normaalstand 69 dB re 1 pW, max. intensiefstand 74 dB re 1 pW
Geluidsniveau bij recirculatie: min. normaalstand 41 dB re 1 pW, max. normaalstand 68 dB re 1 pW, max. intensiefstand 72 dB re 1 pW
Energieklasse: B
Energieklasse ventilator: A
Energieklasse vetfilter: B
Max. geluidsniveau op normaalstand: 69 dB
Technische specificaties
Alternatieve producten
Siemens ED611BS16E
4 kookzones met 17 vermogensstanden
TouchControl bediening
1 CombiZone
€ 1710,00
Siemens EX807NX68E
4 kookzones met 17 vermogensstanden
Dual lightSlider bediening
PowerBoost-functie voor alle inductiekookzones
Actuele prijs aanvragen
Sommige prijzen zijn relatief vaak aan verandering onderhevig. Klik hier om de actuele prijs aan te vragen. Je krijgt dan direct een e-mail met de actuele prijs. Na het invoeren van de code, kan het artikel in de winkelwagen geplaatst worden.
Siemens ED707HQ26E
4 kookzones met 17 vermogensstanden
TouchSlider
PowerBoost-functie voor alle inductiekookzones
Actuele prijs aanvragen
Sommige prijzen zijn relatief vaak aan verandering onderhevig. Klik hier om de actuele prijs aan te vragen. Je krijgt dan direct een e-mail met de actuele prijs. Na het invoeren van de code, kan het artikel in de winkelwagen geplaatst worden.
Terug naar overzicht
Om volledige functionaliteit te bieden, heeft deze website jouw expliciete toestemming nodig om browsercookies op te slaan. Als je geen cookies toestaat, kun je bepaalde functies van de website mogelijk niet gebruiken.